オーディオ交換法

純正オーディオを社外品に交換したいという天の邪鬼なあなた!

これを参考になさって早速チャレンジを!!

audio.jpg (9286 バイト)

時計を取り外します。

(後期型はスイッチ類が付いています。)

の小さいふたを取り外し、中に埋め込まれているネジを外すと

スポンと抜けます。

アンテナ線を外します。

助手席側のカーペットの下に

オーディオに通じる黒い太めの線がありますのでそのコネクターを

2本抜きます。

 

純正オーディオを抜きます。

時計を外すと内部にオーディオを固定してあるのネジが見えます。

これをL字型ドライバーで外します。

すると純正オーディオが抜ける筈です。

途中、手をオーディオの裏側に回し、

車両側とオーディオ側の配線を即座に外しておく必要があります。

 

配線をします。

装着したいオーディオと車両側のピンの割り当てをします。

直結する手もありますが、美しく仕上げたい方は

「いすゞ13ピン」の変換ハーネスを流用しましょう。

以下が13ピンの割り当てです。

T字型2ピンは横棒がグランド、縦棒がイルミです。

 

ACC電源 イルミ SP(FR+)   SP(FR-,RR-) SP(RR+) B+
グランド グランド SP(FL+) アンテナ SP(FL-,RL-) SP(RL+) 空き
 

取り付けます。

1DINを取り付ける場合は純正の取付金具を使えば

これの下側にきっちりはめ込む事ができます。

2DINはそのまま挿入すれば固定されるそうですが

よくわかりません。

(情報求む)

 

型紙を作る。

元に戻すと純正の取り付けられている型と

ニューオーディオとの間がスキスキになります。

これが気になる方は以下をプリントアウトして型紙としてご使用下さい。

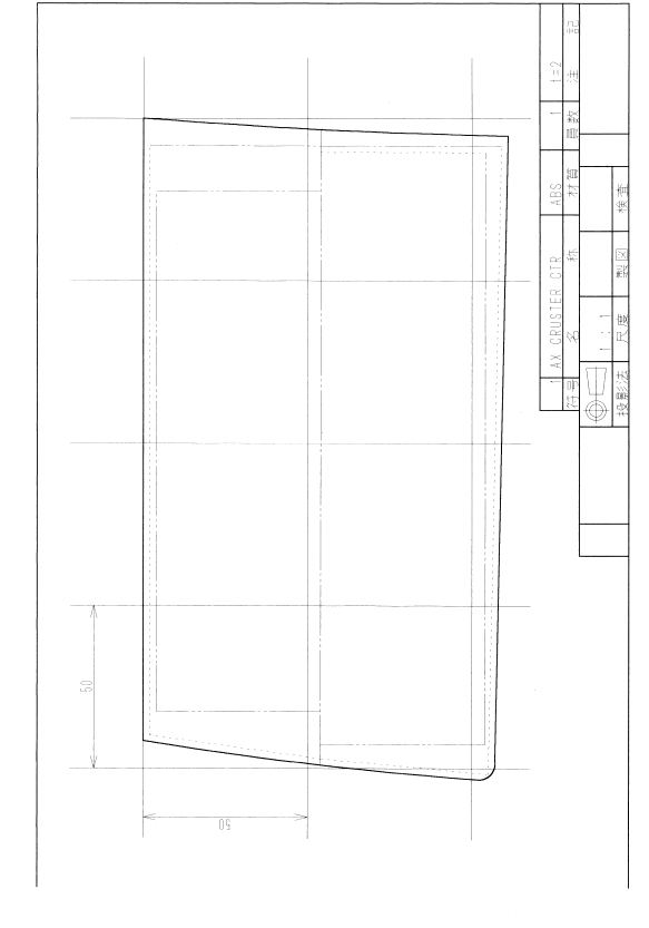
菊地氏特製AX CRUSTER CTR

菊地氏による補足事項

・二点鎖線が AXオリジナル中身の位置、形状
・点線が、INST の合わせ面の形状
・板厚は2〜2.5mmくらいが良い
・念のため、番線をいれておきました。(間隔は50mmです)
番線に合わせてご使用下さい。


ありがとうございまス!菊地さん!